Rechercher sur le site

Cet outil vous aide à faire des recherches par mot-clé dans notre site Web seulement. Pour faire des recherches généalogiques, dans nos fonds d’archives ou dans nos photos historiques, rendez-vous directement dans les outils de recherche des bases de données.

Vos résultats de recherche seront disponible dans quelques instant.
Une erreur est survenue, recommencez.
Accueil
Services
Service de généalogie

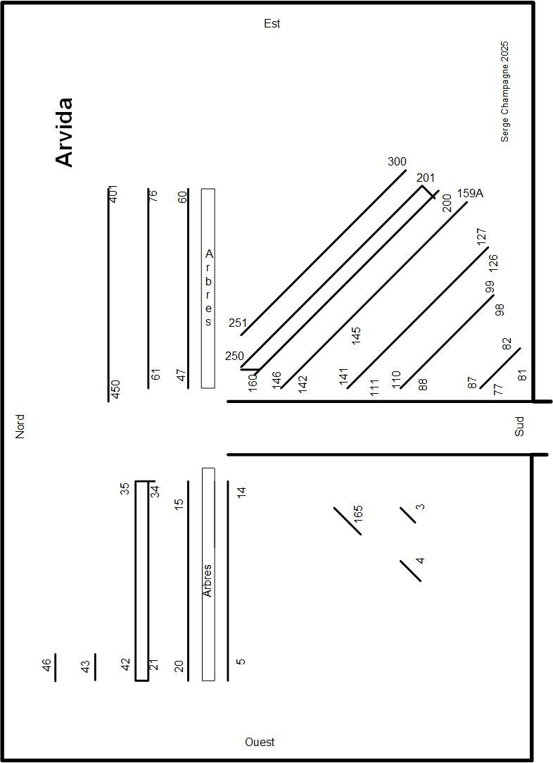
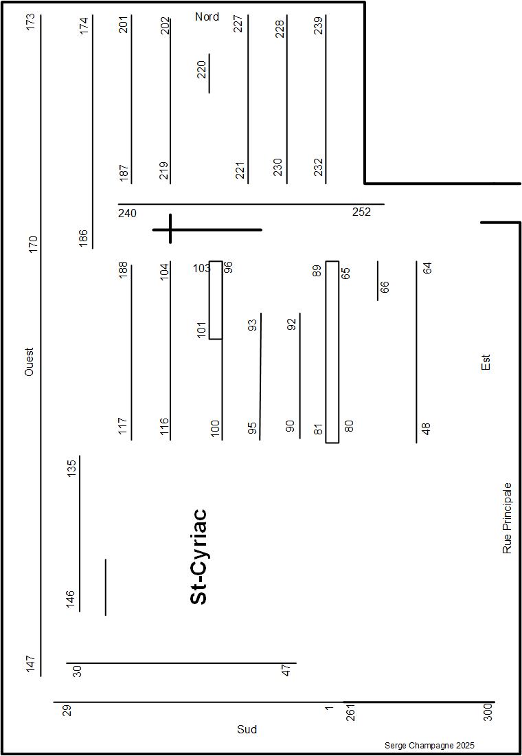
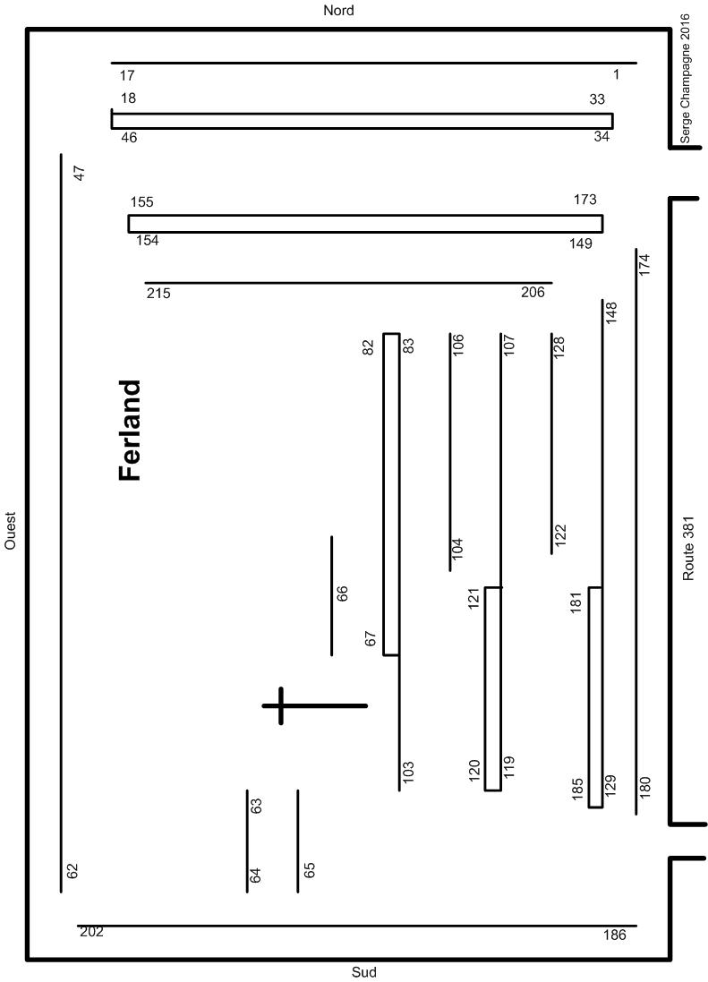
Plans des cimetières

Plans des cimetières du Saguenay–Lac-Saint-Jean, de Charlevoix et de l'Île d'Orléans

Cliquez sur le nom d'un cimetière pour accéder à son plan et vous aider à situer une pierre tombale.